Småstaden Arkitekter : Södermälarstrand 21, 118 20 Stockholm : Tel 08-55600655 : Fax 08-55600656 : E-post post@smastaden.se

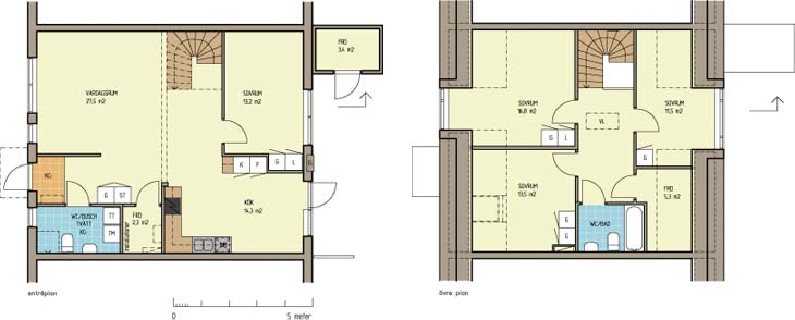
TYPHUS, RADHUS

5 rum och kök, 143m² + 3,4m² förråd, kallgarage, tomt 125-205m²